55 m² Villa ∙ 1 bedroom ∙ 3 guests | Villa in Peccioli with Pool

1 Bedroom Villa in Peccioli
Agriturismo Il Gattero is a nice property having a total of five private apartments that is conveniently located 12 km (7 mi) from Peccioli, Italy and only 30 km (18 mi) from San Gimignano. Agriturismo Il Gattero, among other amenities, includes also shared pool and WiFi internet.
Appartamento Pervinca (55sq m) is a one-bedroom unit with one bathroom that is built on one level and can accommodate up to three guests.
If you enjoy cooking for family and friends there is a well-equipped kitchen including stove and refrigerator, as well as, plenty of tableware and cutlery for up to three people.
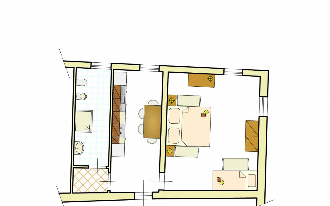
The main entrance to the unit is on floor 1.
Main Floor
Including: kitchen + living room, bedroom, bathroom.
Kitchen + living room: well equipped kitchen, dining table (people: 4), fridge, freezer, stove top, oven, WIFI internet.
Bedroom: double bed, single bed, WIFI internet, armchair, working desk.
Bathroom: basin, toilet, bidet, shower, WIFI internet.
Additional Areas
Available to all guests: garden.
Garden: swimming pool (length: 12m, width: 6.5m, max. depth: 2.8m, min. depth: 1.2m), shower, WIFI internet, barbecue, dining table, gazebo, sunbed, children's playground, football pitch 5vs5.
There are also a tennis table, bocce court and 4 bikes