49 m² Apartment ∙ 1 bedroom ∙ 4 guests | Apartment in Issing with Pool

1 Bedroom Apartment in Issengo, Issing
This property offers access to shared outdoor amenities, including a pool, garden, open terrace, covered terrace, and barbecue area.
Public transport links are located within walking distance.
10 parking spaces are available on the property and free parking is available on the street.
One pet is allowed.
Guests have access to a washing room upon request.
Smoking and celebrating events are not allowed.
Ski storage is available.
This property has guidelines to help guests with the correct separation of waste. More information is provided on site.
This property has light and water-saving features.
The electricity at this property is partly generated by photovoltaic panels.
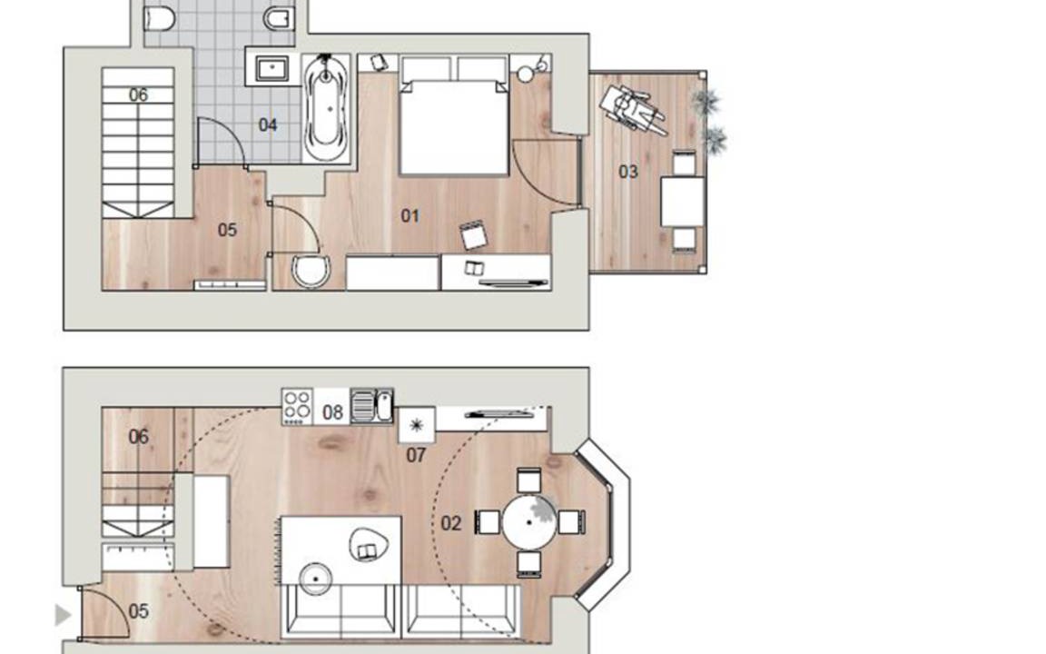
With a view of the Alps, the holiday apartment 2 in Issengo is perfect for a relaxing holiday. The 2-storey property consists of a living room with 2 sofa beds for one person each, a well-equipped kitchen, 1 bedroom and 1 bathroom and can therefore accommodate 4 people. Additional amenities include high-speed Wi-Fi (suitable for video calls), beach/pool towels as well as children's books and toys. Furthermore, a shared sauna is available on the property. A baby cot is also available. This vacation rental features a private balcony for your evening relaxation.